Zum Inhalt springen
architektur bauen
• •
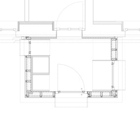
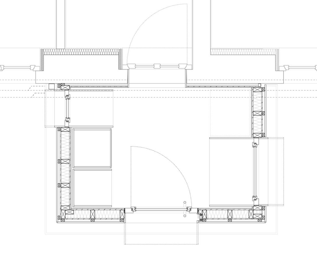
Windfang Grundriss
Kommentar
Abonnieren
Abonniert
architektur bauen
Anmelden
Du hast bereits ein WordPress.com-Konto?
Melde dich jetzt an.
architektur bauen
Abonnieren
Abonniert
Registrieren
Anmelden
Kurzlink kopieren
Melde diesen Inhalt
Beitrag im Reader lesen
Abonnements verwalten
Diese Leiste einklappen