Umsetzung 2016-19
Das in Holzbauweise auf massivem Sockel erstellte Sommerhaus steht nahe am Meerufer etwas erhöht auf einer Landzunge, zwischen Erlen und Ebereschen. Das Gebäude nimmt traditionelle Proportionen und Materialen auf und interpretiert sie neu. Es verharkt sich mit der einprägsamen Landschaft, kleinere Fenster setzen bewusst Aussichten, grosse Glasfronten und vorgelagerte Terassen sorgen für einen fliessenden Übergang zwischen Innen und Aussen. Ein wunderschöner Standort mit Blick auf das weite Meer, im Lichtspiel vom Wind raschelnder Blätter.
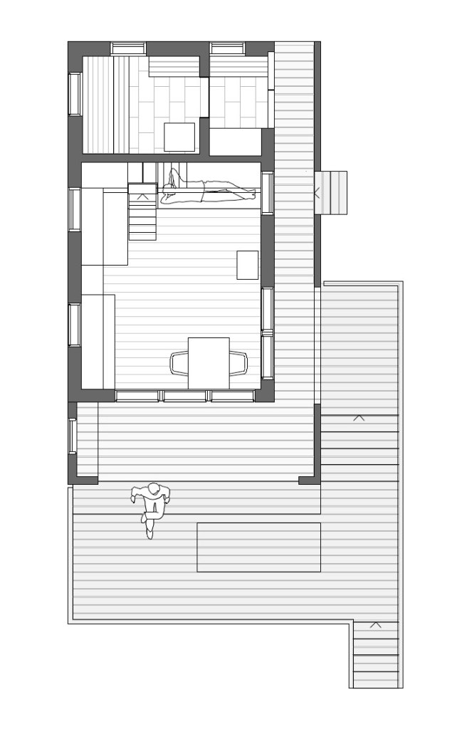
Aber der Ort brachte neben dem schwierigen Baugrund zwei besondere Herausforderungen mit sich. Die erste ist eine baurechtliche: Gebäude, welche bis 15m ans Meeresufergebaut werden, dürfen in der Grundfläche inklusive Wänden maximal 28m2 aufweisen, wovon mindestens ein Drittel Saunafläche sein muss. Der verbleibende Innenraum von 15m2 Fläche muss also so optimal angeordnet sein, dass er als Wohn- /Schlaf- / Koch- und Esszimmer für zwei Personen gut funktioniert, ohne dabei beengend zu wirken. Die Höhe bis in die Dachschräge und die Erweiterung auf eine gedeckte Terrasse gibt ihm Grosszügigkeit. Ausgeklügelte, teilweise multifunktionale Einbaumöbel nutzen den Raum optimal.
Die zweite Herausforderung ist eine logistische: Da die Insel weder ans Wasser- / Abwasser- noch ans Stromnetz angeschlossen ist und es auch keine Strassen gibt, mussten Stromgeneratoren, Benzin und Wasser organisiert und es mussten alle Baumaschinen und Baumaterialien per Lastkahn auf die Insel gebracht werden. An diesem abgelegenen Ort kann nur in den Sommermonaten mit vernünftigem Aufwand gebaut werden, weshalb der Bau über vier Jahre etappiert wurde. Neben der üblichen Architekturarbeit galt es, Lieferanten für die Baumaterialien zu finden, Preise zu vergleichen, Liefertermine abzustimmen.



















